+1 866 829 3949
+1 855 925 9926
Customers@fenspro.com
GS142
Sliding System

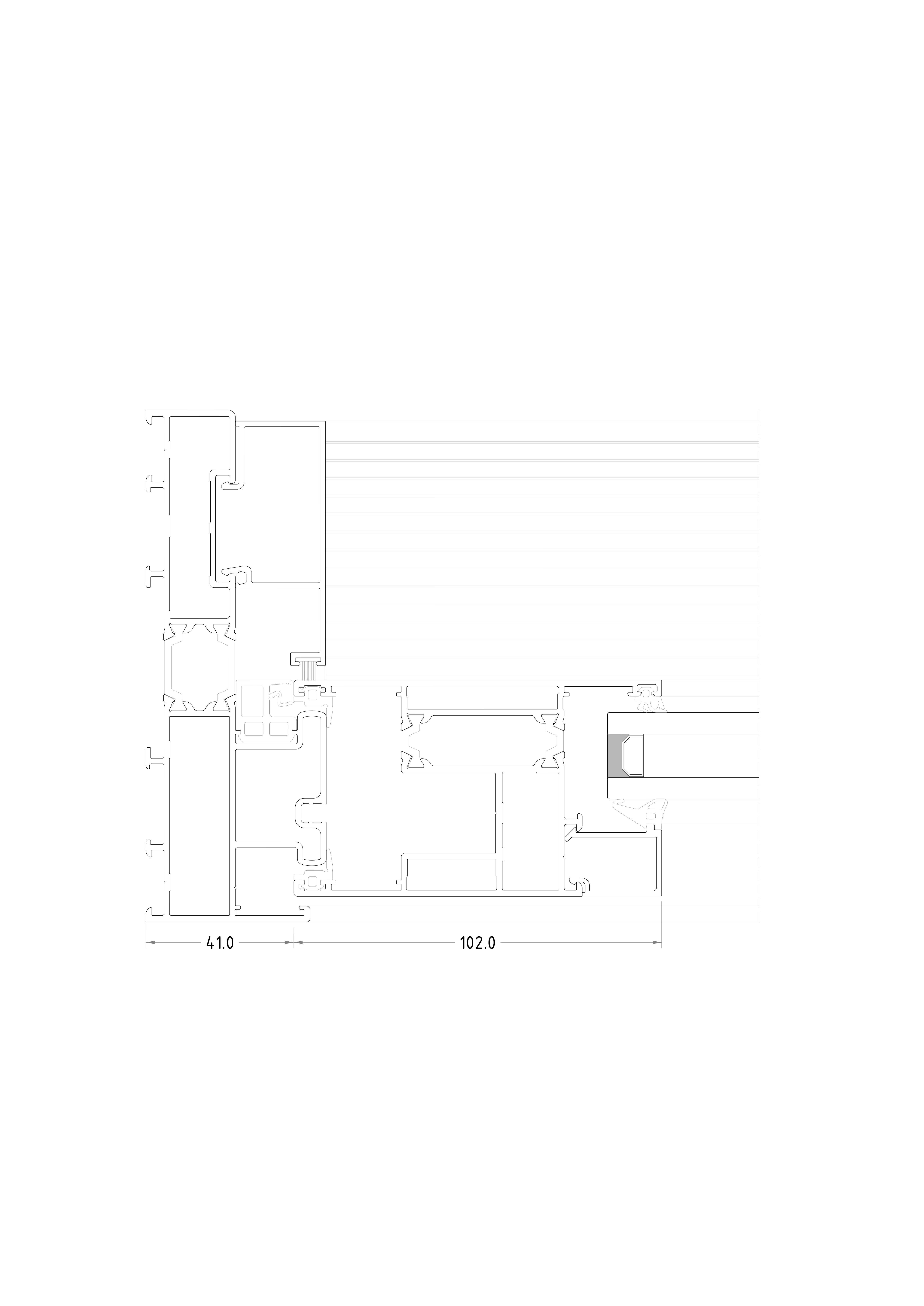
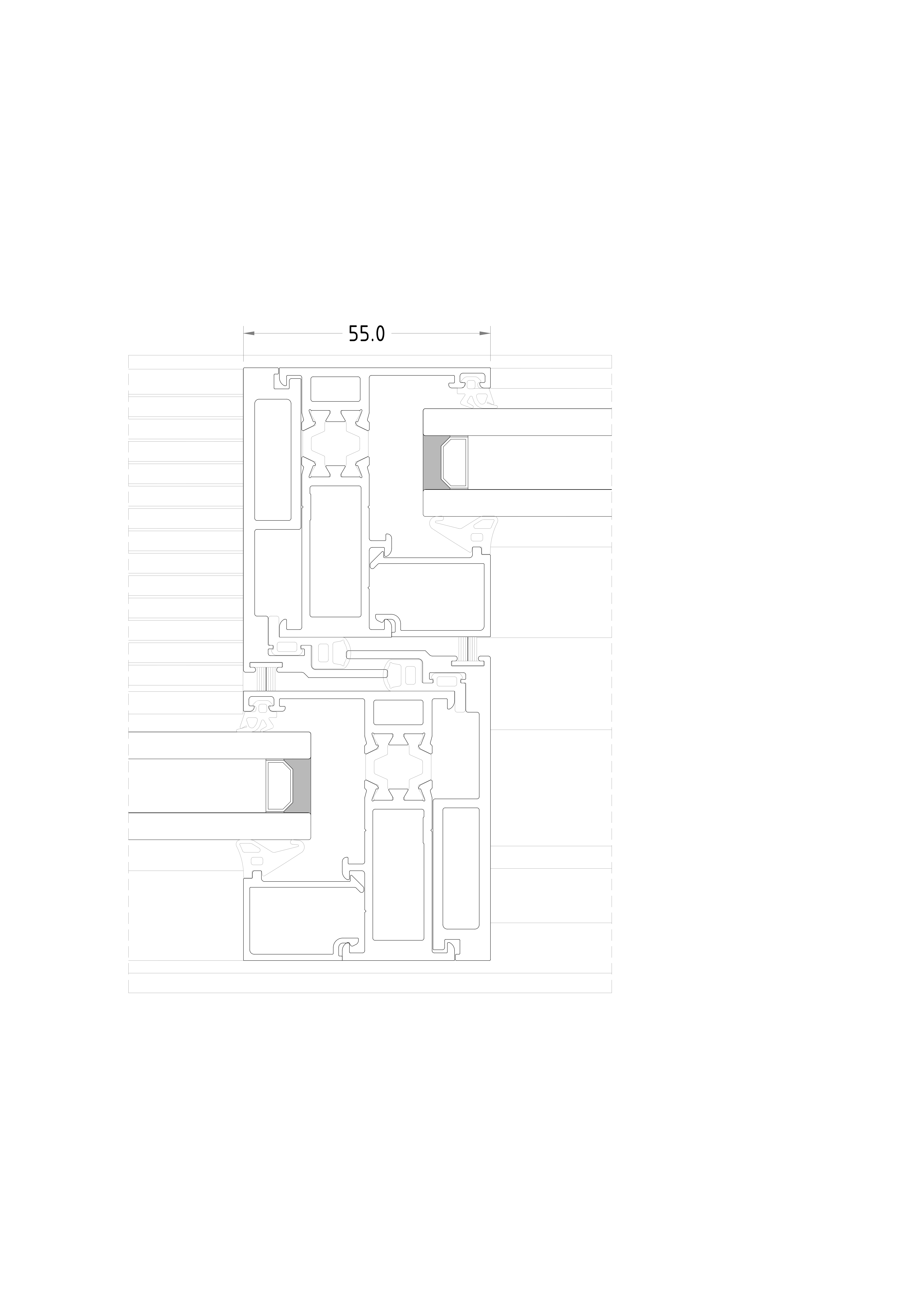
GS142 is a lift & slide system with maximum sash weight up to 400kg. It can support a big sizes of glazing and ideal for patio doors and suitable for places  with large viewing to outside. GS142 available in 2, 3 and four opening sashes with different combination of fix and operable sashes

56
57
58
59

Descriptions Value
Frame Depth: 142 mm.
Vent Depth: 60 mm.
Glass Thickness: Up to 42 mm
Rebate Height: 22 mm
Glazing Type: Dry Galazing with EPDM

Technical performance:

GS142 is a lift & slide system with maximum sash weight up to 400kg. It can support a big sizes of glazing and ideal for patio doors and suitable for places  with large viewing to outside. GS142 available in 2, 3 and four opening sashes with different combination of fix and operable sashes