+1 866 829 3949
+1 855 925 9926
Customers@fenspro.com
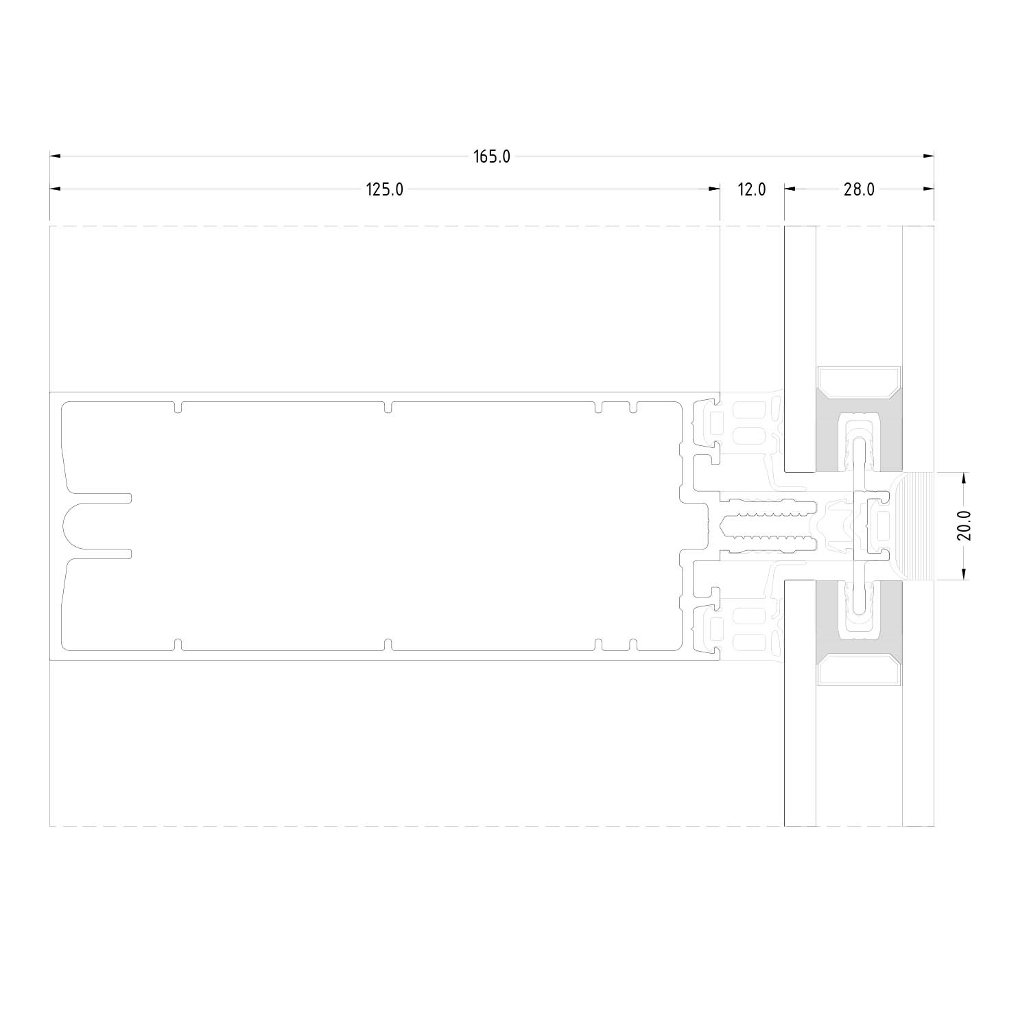
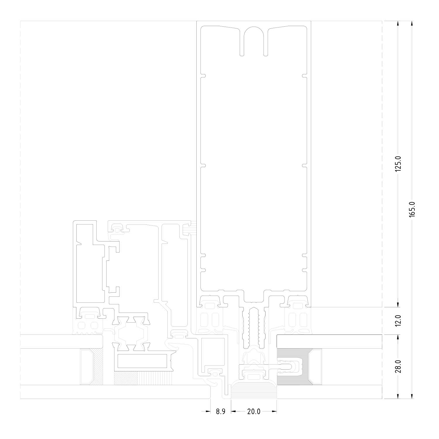
GF50
Stick System

GF50 is a curtain wall system with a new drainage system with identical mullion and transom with high performance energy efficiency. The system is available in
different style of stick and structural glazing and opening frame and offers an extensive range of technical solutions for facade requirements of buildings.
The system allows for efficient production, reduces processing costs.The structure’s homogeneity minimizes cut-off and optimizes stock-keeping.

26
27
28
29

Descriptions Value
Frame Depth:
Vent Depth:
Glass Thickness:
Rebate Height:
Glazing Type:

Technical performance:

GF50 is a curtain wall system with a new drainage system with identical mullion and transom with high performance energy efficiency. The system is available in
different style of stick and structural glazing and opening frame and offers an extensive range of technical solutions for facade requirements of buildings.
The system allows for efficient production, reduces processing costs.The structure’s homogeneity minimizes cut-off and optimizes stock-keeping.